aktuelles Projekt

Architektur

Innenraum

Konzepte

Kontakt

Impressum

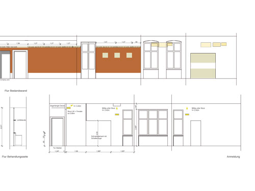
Sanierung einer ZAHNARZTPRAXIS | Berlin, Reinickendorf
Zwei Altbauwohnungen werden zu einer Zahnarztpraxis saniert und umgebaut

Die beiden Altbauwohnungen in einem Gründerzeithaus in Reinickendorf wurde zu einer Zahnarztpraxis verbunden, wobei in einer eine besthende Praxis war.
Die komplette Elektrik, die gesamten sanitären Anlagen, sowie die Dentaktechnik wurden neu verlegt. Ein bronzenes "Band" verbindet die beiden einheiten zu einer Zahnarztpraxis. Warme Materialien und Farben in Wartebereich ermöglichen eine angenehme Wartezeit. Die Behandlungsräume sind an dem "Band", dem Flur wie an einer Linie aufgereit. Die Sanierung wurde im laufenden Betrieb der besthenden Praxis vollzogen.


Beginn | 06 | 2005
Bauende | 09 | 2005
Bauherr | Dr. Frank Wiebeck
Ort | Residenzstr.
Nutzung | Gewerbe | Zahnarzt


web www.dr-wiebeck.de